1803 E Gore Road, Raymore, MO 64083

     
  • 4Beds
  •   
  • 3 Baths
  •  
  • 1½ Bath
  •  
  • 2,496Sq Ft
Mortgage Calculator

$488,000
 est. $2,049/mo

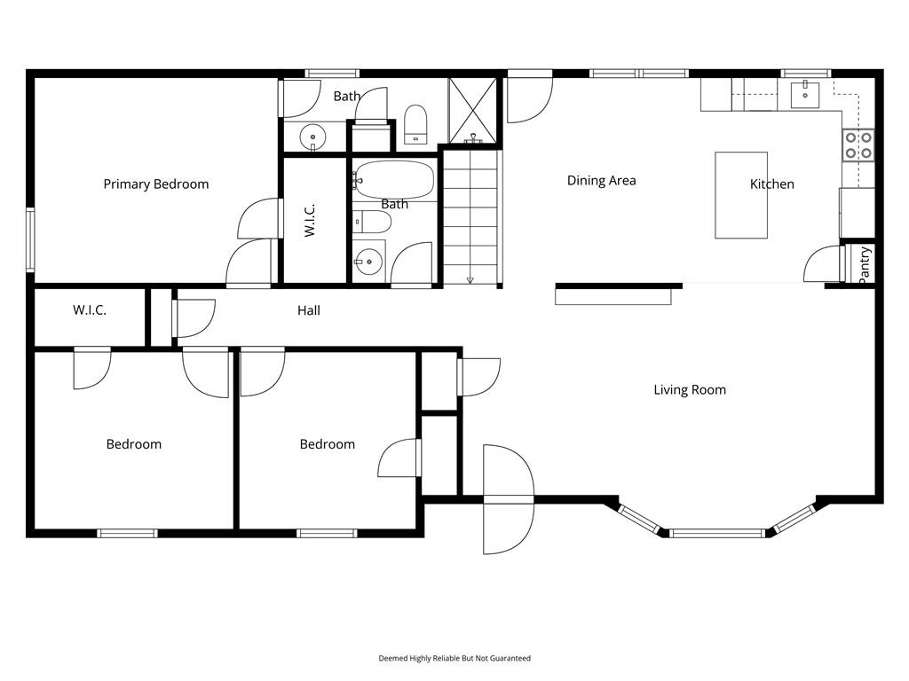
Rare Find in Raymore — Ranch Living with Room to Roam on 2.27 Acres! Not only is this Ranch within minutes of shopping, but has a potential additional living quarters available& SHOP! The main home features an updated kitchen with granite countertops and stainless steel appliances, newer carpet throughout, and updated bathrooms — all the finishing touches that make a house feel like home from day one. Head downstairs to discover one of this property's most exciting features: a fully finished basement complete with a private-entrance, full daylight, Mother-in-Law suite — ideal as a multi-generational living space, guest quarters, or potential second residence. The flexibility this home offers is truly unmatched in this price range. A 2-car detached garage plus an additional garage/outbuilding/ SHOP with a concrete floor and electricity give you exceptional storage, workspace, or hobby space — perfect for car enthusiasts, hobbyists, or those needing extra room for equipment and tools. *Shop has a lean-to added on for additional storage or animals. And the big-ticket items? Already done! Enjoy peace of mind with a newer roof, updated septic system, new furnace, and new air conditioning system — major capital expenditures that have already been invested for you. Properties like this simply don't come along often. Whether you're looking for multi-generational living, a private retreat with acreage, or a home with income potential without an hour commute — 1803 E Gore checks every box! ?? Schedule your private showing today before this one is gone!

Directions
from 150 Hwy, take Pryor South to County Line Rd, left on Prairie Lane, left on Gore
Subdivision
Farview Farms
City
Raymore
County
Cass
Property Type
Residential / Single Family Residence
Listing Updated
Apr 25, 2026 at 10:04am
MLS Number
2615614
Property Tax
$2,599
Home Owners Association
No
Disclaimer
The information displayed on this page is confidential, proprietary, and copyrighted information of Heartland Multiple Listing Service, Inc. (“Heartland MLS”). Copyright 2026, Heartland Multiple Listing Service, Inc. Heartland MLS, Elite Realty and Agent Jo do not make any warranty or representation concerning the timeliness or accuracy of the information displayed herein. In consideration for the receipt of the information on this page, the recipient agrees to use the information solely for the private non-commercial purpose of identifying a property in which the recipient has a good faith interest in acquiring.
The data relating to real estate displayed on this website comes in part from the Heartland Multiple Listing Service database compilation. The properties displayed on this website may not be all of the properties in the Heartland MLS database compilation, or all of the properties listed with other brokers participating in the Heartland MLS IDX program. Detailed information about the properties displayed on this website includes the name of the listing company.
Information is deemed reliable but is not guaranteed.

Copyright © 2026 ELITE Realty.