9529 Pflumm Road, Lenexa, KS 66215

Mortgage Calculator

$365,000
 est. $1,819/mo

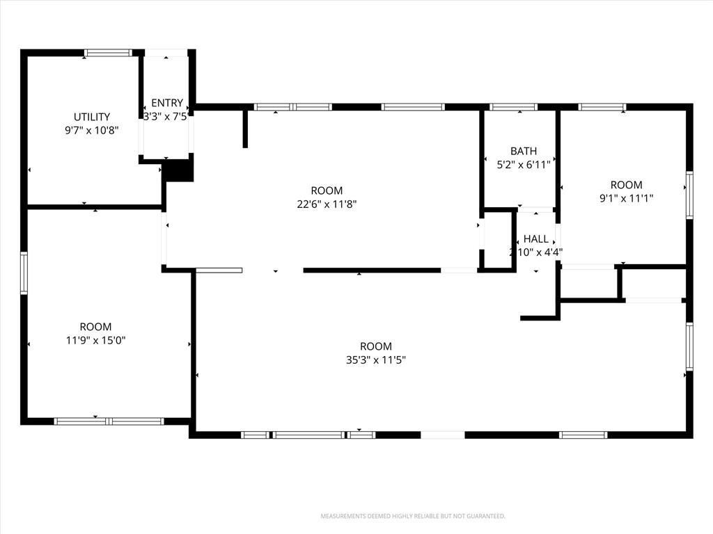
Position your business for success at 9529 Pflumm—an attractive, freestanding commercial building offering excellent visibility, easy access, and 18 dedicated parking spaces. Currently configured as a salon, the interior features a bright, open layout with multiple styling stations, wash stations, and a welcoming reception area. Large windows provide abundant natural light, creating an inviting atmosphere for clients and staff alike. The flexible floor plan allows for a variety of retail or service-based uses, making this an ideal opportunity for owner-users or investors. Additional features include a private restroom, break/storage room, and convenient rear access. The property sits on a spacious lot with strong street presence and signage potential, helping your business stand out in a well-trafficked area. Turnkey salon setup (easily adaptable to other uses) Excellent visibility and signage opportunity Whether you’re expanding, relocating, or investing, 9529 Pflumm offers versatility, functionality, and a prime location to grow your business.

Directions
I-35 to 95th St, W on 95th St to Pflumm Rd, Left on Pflumm Rd to business.
Subdivision
Other
City
Lenexa
County
Johnson, KS
Property Type
Commercial Sale / Retail
Listing Updated
Apr 22, 2026 at 10:04am
MLS Number
2615568
Property Tax
$5,384
Zoning
$Retail
Disclaimer
The information displayed on this page is confidential, proprietary, and copyrighted information of Heartland Multiple Listing Service, Inc. (“Heartland MLS”). Copyright 2026, Heartland Multiple Listing Service, Inc. Heartland MLS, Elite Realty and Agent Jo do not make any warranty or representation concerning the timeliness or accuracy of the information displayed herein. In consideration for the receipt of the information on this page, the recipient agrees to use the information solely for the private non-commercial purpose of identifying a property in which the recipient has a good faith interest in acquiring.
The data relating to real estate displayed on this website comes in part from the Heartland Multiple Listing Service database compilation. The properties displayed on this website may not be all of the properties in the Heartland MLS database compilation, or all of the properties listed with other brokers participating in the Heartland MLS IDX program. Detailed information about the properties displayed on this website includes the name of the listing company.
Information is deemed reliable but is not guaranteed.

Copyright © 2026 ELITE Realty.