7420 Hardy Avenue, Raytown, MO 64133

     
  • 3Beds
  •   
  • 2 Baths
  •  
  • 1½ Bath
  •  
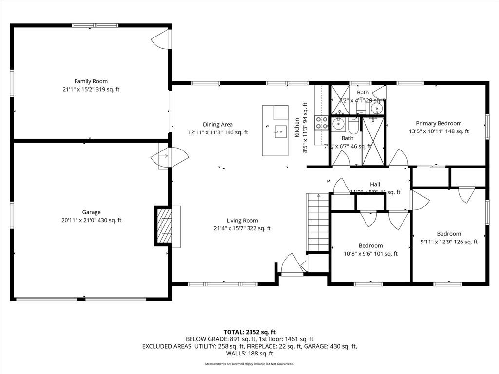
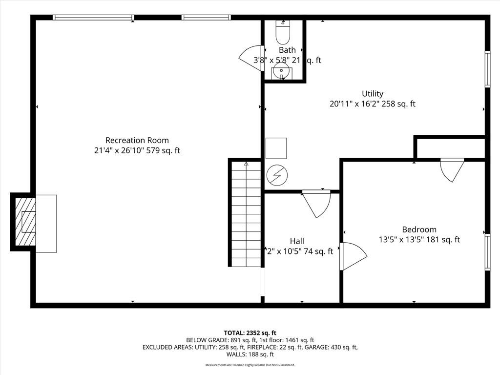
  • 2,527Sq Ft
Mortgage Calculator

$299,900
 est. $1,233/mo

Spacious Updated Ranch with Finished Lower Level & Fenced Yard: Welcome to this fully updated 3-bedroom, 2.5-bath ranch-style home with a finished daylight basement; offering a 4th non-conforming bedroom and nearly 2,500 square feet of total living space. With 1,636 square feet on the main level and an additional 891 finished below, this home provides room to spread out, grow, and enjoy! Inside, you’ll find an open and airy layout filled with natural light and warm wood floors throughout the main living areas. The kitchen features updated appliances, plenty of cabinet space, and a functional flow into the dining and living rooms—making it easy to cook, gather, and relax. Downstairs, the finished lower level adds even more versatility, with a large second living area, full bathroom, storage space, and a 4th non-conforming bedroom that’s perfect for a home office, guest room, playroom, or gym. Step outside to enjoy the oversized deck and patio overlooking a fully fenced backyard—ideal for kids, pets, or weekend BBQs. An attached two-car garage with opener adds convenience and storage. Additional updates throughout the home include newer mechanicals, modern lighting, and fresh finishes that give the home an updated yet comfortable feel. Located in the Raytown School District, close to parks, schools, shopping, and main commuter routes, this home is a solid option for anyone looking for space, flexibility, and move-in ready updates at a great value.

Directions
From 75th street go north on Hardy to home on left.
Subdivision
South Brooke Estate
City
Raytown
County
Jackson
Property Type
Residential / Single Family Residence
Listing Updated
Apr 17, 2026 at 5:04pm
MLS Number
2594419
Property Tax
$1,285
Home Owners Association
No
Disclaimer
The information displayed on this page is confidential, proprietary, and copyrighted information of Heartland Multiple Listing Service, Inc. (“Heartland MLS”). Copyright 2026, Heartland Multiple Listing Service, Inc. Heartland MLS, Elite Realty and Agent Jo do not make any warranty or representation concerning the timeliness or accuracy of the information displayed herein. In consideration for the receipt of the information on this page, the recipient agrees to use the information solely for the private non-commercial purpose of identifying a property in which the recipient has a good faith interest in acquiring.
The data relating to real estate displayed on this website comes in part from the Heartland Multiple Listing Service database compilation. The properties displayed on this website may not be all of the properties in the Heartland MLS database compilation, or all of the properties listed with other brokers participating in the Heartland MLS IDX program. Detailed information about the properties displayed on this website includes the name of the listing company.
Information is deemed reliable but is not guaranteed.

Copyright © 2026 ELITE Realty.