117 Oak Street, Bonner Springs, KS 66012

Mortgage Calculator

$279,950
 est. $1,733/mo

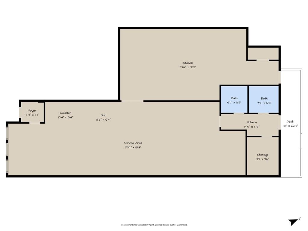
PRIME DOWNTOWN BONNER SPRINGS MIXED-USE BUILDING WITH 2 STORE FRONTS ACROSS FROM NEW APARTMENTS! This high-visibility commercial property features two main-level storefronts: one side is an established restaurant with built-in foot traffic, while the other side is vacant and ready for your next business, retail shop, or office idea. A full basement runs under the building, offering extra storage, prep space, or future expansion potential. The location is hard to beat—right across from a newer apartment complex, giving you a steady stream of nearby residents and customers plus strong long-term demand. Whether you’re an investor looking for “downtown Bonner Springs commercial building with tenant” or an owner-user searching for “Main Street storefront with existing restaurant and open space,” this property checks a lot of boxes with upside and flexibility. Additional commercial buildings are also available, giving you even more room to grow your portfolio or footprint in this active corridor.

Directions
From 7 Hwy in Bonner Springs take the 32 Hwy Exit and go West, turn right on Oak St to property.
Subdivision
Tiblow
City
Bonner Springs
County
Wyandotte
Property Type
Commercial Sale / Retail
Listing Updated
Dec 24, 2025 at 12:12pm
MLS Number
2593023
Property Tax
$8,179
Zoning
$C-1
Disclaimer
The information displayed on this page is confidential, proprietary, and copyrighted information of Heartland Multiple Listing Service, Inc. (“Heartland MLS”). Copyright 2025, Heartland Multiple Listing Service, Inc. Heartland MLS, Elite Realty and Agent Jo do not make any warranty or representation concerning the timeliness or accuracy of the information displayed herein. In consideration for the receipt of the information on this page, the recipient agrees to use the information solely for the private non-commercial purpose of identifying a property in which the recipient has a good faith interest in acquiring.
The data relating to real estate displayed on this website comes in part from the Heartland Multiple Listing Service database compilation. The properties displayed on this website may not be all of the properties in the Heartland MLS database compilation, or all of the properties listed with other brokers participating in the Heartland MLS IDX program. Detailed information about the properties displayed on this website includes the name of the listing company.
Information is deemed reliable but is not guaranteed.

Copyright © 2025 ELITE Realty.