7710 Speaker Road, Kansas City, KS 66111

     
  • 3Beds
  •   
  • 2 Baths
  •  
  • 0½ Baths
  •  
  • 2,032Sq Ft
Mortgage Calculator

$290,000
 est. $1,404/mo

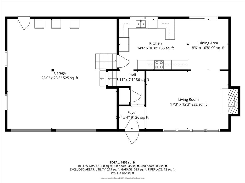
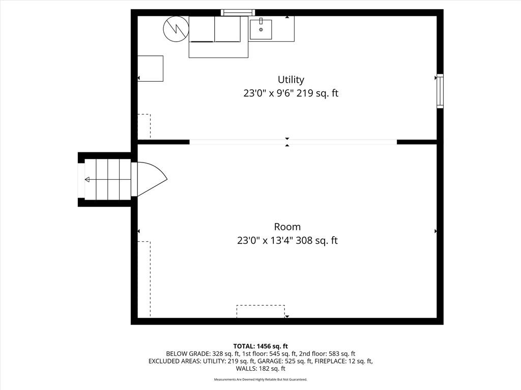
Tucked away on a dead end road and sitting on a generous .8 acre lot, this 3 bedroom, 2 bath home offers space, privacy, and potential in all the right ways. Opening the front door, you are welcomed into a cozy living room centered around a charming fireplace. The floor plan flows effortlessly into the dining area, which is open to the kitchen, perfect for daily living and entertaining. The kitchen features painted cabinets with modern handles, abundant cabinet space, and the added convenience of a newer dishwasher and microwave. Upstairs, you will find all three bedrooms, two of which showcase original hardwood floors. The primary bedroom includes a private ensuite with an updated vanity and a walk in shower with tile surround. The hallway bathroom is spacious and offers extra storage, making everyday routines more convenient. The lower level provides excellent potential for a rec room, home gym, playroom, or second living space, offering flexibility to match your lifestyle. Outside, the nearly full acre backyard is the true highlight of the home, offering space to host, unwind, play, and enjoy complete privacy. A shed provides additional storage for tools or outdoor gear. With quick highway access, you are just a short drive from shopping, dining, entertainment, and major destinations throughout the metro. A rare combination of privacy, potential, and proximity to everything the metro has to offer, this home truly checks all the boxes.

Directions
From 70 Highway, take the 78th St exit and travel South, take a left on Speaker Rd. Home will be on the left.
Subdivision
Other
City
Kansas City
County
Wyandotte
Property Type
Residential / Single Family Residence
Listing Updated
Dec 19, 2025 at 1:12am
MLS Number
2591517
Property Tax
$3,779
Home Owners Association
No
Disclaimer
The information displayed on this page is confidential, proprietary, and copyrighted information of Heartland Multiple Listing Service, Inc. (“Heartland MLS”). Copyright 2025, Heartland Multiple Listing Service, Inc. Heartland MLS, Elite Realty and Agent Jo do not make any warranty or representation concerning the timeliness or accuracy of the information displayed herein. In consideration for the receipt of the information on this page, the recipient agrees to use the information solely for the private non-commercial purpose of identifying a property in which the recipient has a good faith interest in acquiring.
The data relating to real estate displayed on this website comes in part from the Heartland Multiple Listing Service database compilation. The properties displayed on this website may not be all of the properties in the Heartland MLS database compilation, or all of the properties listed with other brokers participating in the Heartland MLS IDX program. Detailed information about the properties displayed on this website includes the name of the listing company.
Information is deemed reliable but is not guaranteed.

Copyright © 2025 ELITE Realty.