1857 Praun Lane, Kansas City, KS 66102

     
  • 4Beds
  •   
  • 3 Baths
  •  
  • 1½ Bath
  •  
  • 1,857Sq Ft
Mortgage Calculator

$265,000
 est. $1,318/mo

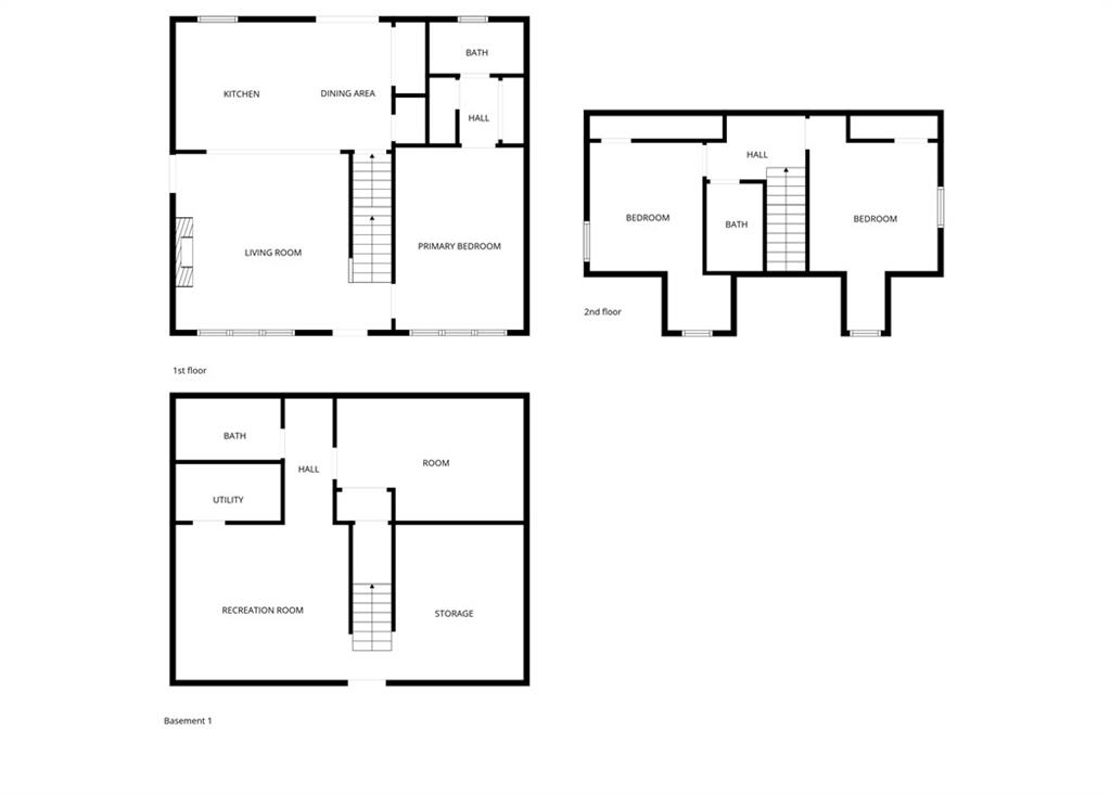
Absolutely CHARMING! This home stands out! Beautiful color and structure outside! INSIDE: A lovely, welcoming living room! Here you will find a working gas fireplace, ceiling fan, unique wall cabinet, and a door to the garage. In the kitchen, there are medium-toned Shaker-style cabinets and a tile backsplash. Stainless steel appliances, nice hardwood floors, an island, room for a table, and a laundry area with a double door opening. A half-bathroom with built-in cabinets is conveniently located on the main floor. Looking out the sliding doors, you see a nice-sized yard with a large deck and a shed that stays. The main floor also boasts the Primary Bedroom with lots of natural light, a ceiling fan, a modern feel, and an ensuite bath with shower/tub combo. As you ascend to the second floor, note the stylish wooden handrail. These stairs lead to two very distinctive bedrooms, each with a ceiling fan, one large window, and one window in a nook. So INVITING and cozy! Upstairs bedrooms share a full bath with a shower over the tub. The basement is partially finished and offers so many creative ways to use the space! There is a vinyl floor, a storage area, an almost finished full bathroom, a BONUS room, and a STUDIO room with noise-cancelling drywall. Nice, 2-inch blinds throughout this home show very nicely, and the lighting throughout is just outstanding! This is such a stylish home! Come and see it TODAY!

Directions
635 to Parallel, E to Praun Lane, S to home
Subdivision
Hi-View Add
City
Kansas City
County
Wyandotte
Property Type
Residential / Single Family Residence
Listing Updated
Dec 14, 2025 at 4:12pm
MLS Number
2591239
Property Tax
$3,878
Home Owners Association
No
Disclaimer
The information displayed on this page is confidential, proprietary, and copyrighted information of Heartland Multiple Listing Service, Inc. (“Heartland MLS”). Copyright 2025, Heartland Multiple Listing Service, Inc. Heartland MLS, Elite Realty and Agent Jo do not make any warranty or representation concerning the timeliness or accuracy of the information displayed herein. In consideration for the receipt of the information on this page, the recipient agrees to use the information solely for the private non-commercial purpose of identifying a property in which the recipient has a good faith interest in acquiring.
The data relating to real estate displayed on this website comes in part from the Heartland Multiple Listing Service database compilation. The properties displayed on this website may not be all of the properties in the Heartland MLS database compilation, or all of the properties listed with other brokers participating in the Heartland MLS IDX program. Detailed information about the properties displayed on this website includes the name of the listing company.
Information is deemed reliable but is not guaranteed.

Copyright © 2025 ELITE Realty.