26674 Southeast 200 Road, Kincaid, KS 66039

Mortgage Calculator

$275,000
 est. $1,137/mo

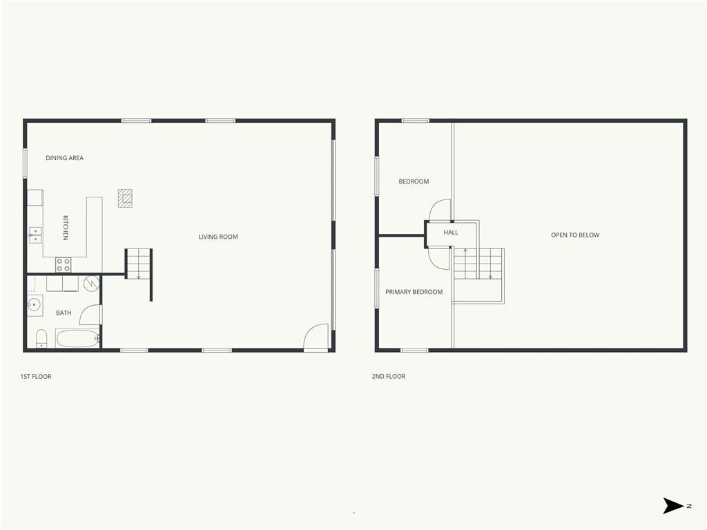
Private 60-Acre Hunting Retreat — Rustic Off-Grid Home Discover 60 acres of beautiful, heavily wooded hunting land with rolling terrain and established trails throughout the property. An off-grid 2-bedroom, 1-bath cabin provides a comfortable base camp — simple living with woodstove heat, solar power capability, and plenty of storage for gear. Ideal for deer hunters: multiple food-plot sites, natural funnels, and mature timber that consistently hold big bucks. Quiet, secluded, and ready for your next season — bring your hunting party and enjoy instant access to rugged, productive habitat. Options for expansion, additional stand sites, or food plots. Easy access yet true privacy. Schedule a showing today.

Directions
Us 169 to Highway 59 take Highway 59, South to Lone Elm Turn onto South Nebraska Road at Lone Elm and head south for 2 mi to Road 200 Turn East on 200 for 2 and 1/2 mi and you have reached your new private Oasis
Subdivision
None
City
Kincaid
County
Anderson
Property Type
Farm / Unimproved Land
Listing Updated
Dec 03, 2025 at 4:12pm
MLS Number
2589780
Property Tax
$1,246
Zoning
$AG
Home Owners Association
No
Disclaimer
The information displayed on this page is confidential, proprietary, and copyrighted information of Heartland Multiple Listing Service, Inc. (“Heartland MLS”). Copyright 2025, Heartland Multiple Listing Service, Inc. Heartland MLS, Elite Realty and Agent Jo do not make any warranty or representation concerning the timeliness or accuracy of the information displayed herein. In consideration for the receipt of the information on this page, the recipient agrees to use the information solely for the private non-commercial purpose of identifying a property in which the recipient has a good faith interest in acquiring.
The data relating to real estate displayed on this website comes in part from the Heartland Multiple Listing Service database compilation. The properties displayed on this website may not be all of the properties in the Heartland MLS database compilation, or all of the properties listed with other brokers participating in the Heartland MLS IDX program. Detailed information about the properties displayed on this website includes the name of the listing company.
Information is deemed reliable but is not guaranteed.

Copyright © 2025 ELITE Realty.