3958 Louisiana Road, Ottawa, KS 66067

     
  • 2Beds
  •   
  • 1 Bath
  •  
  • 0½ Baths
  •  
  • 1,080Sq Ft
Mortgage Calculator

$450,000
 est. $1,844/mo

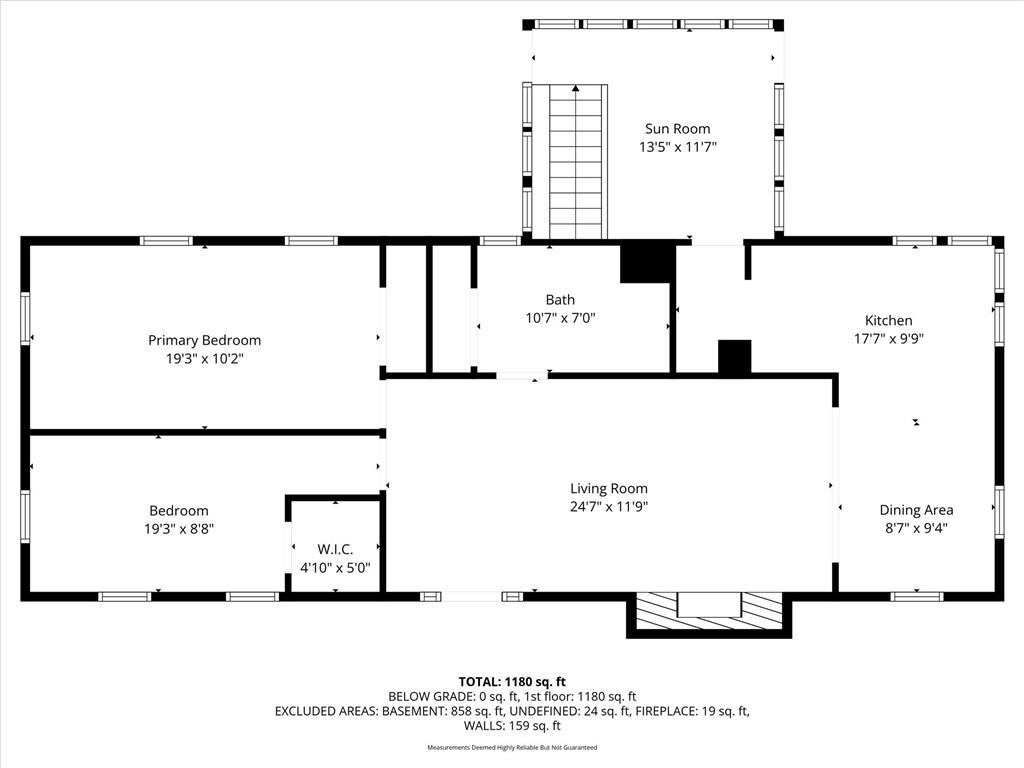
Cozy 2 Beroom, 1 Bath home on 5 Acres, get away to the country. New Flooring, paint, counter tops, move in ready. The bonus is the 60x40 shop wired, insulated, concrete floor, seperate bay for the boat or campers. Floorplan is for illustrative purposes only. All dimensions and layouts are approximate. Virtual staging/lighting

Directions
US 59 Hwy North to Sadcreek Rd. West to Louisana Rd. North to 3958 prperty on West side of road
Subdivision
Other
City
Ottawa
County
Franklin, KS
Property Type
Residential / Single Family Residence
Listing Updated
Nov 24, 2025 at 10:11am
MLS Number
2587430
Property Tax
$1,849
Home Owners Association
No
Disclaimer
The information displayed on this page is confidential, proprietary, and copyrighted information of Heartland Multiple Listing Service, Inc. (“Heartland MLS”). Copyright 2025, Heartland Multiple Listing Service, Inc. Heartland MLS, Elite Realty and Agent Jo do not make any warranty or representation concerning the timeliness or accuracy of the information displayed herein. In consideration for the receipt of the information on this page, the recipient agrees to use the information solely for the private non-commercial purpose of identifying a property in which the recipient has a good faith interest in acquiring.
The data relating to real estate displayed on this website comes in part from the Heartland Multiple Listing Service database compilation. The properties displayed on this website may not be all of the properties in the Heartland MLS database compilation, or all of the properties listed with other brokers participating in the Heartland MLS IDX program. Detailed information about the properties displayed on this website includes the name of the listing company.
Information is deemed reliable but is not guaranteed.

Copyright © 2025 ELITE Realty.