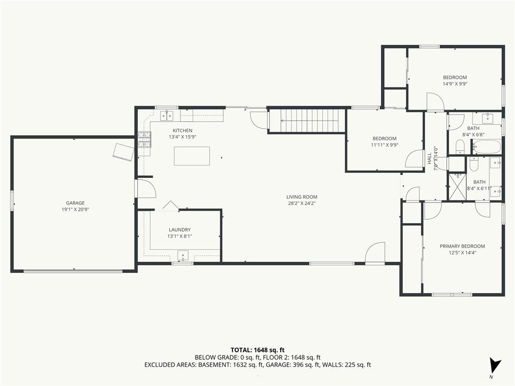
1309 W 100TH Terrace, Kansas City, MO 64114

     
  • 3Beds
  •   
  • 2 Baths
  •  
  • 0½ Baths
  •  
  • 1,752Sq Ft
Mortgage Calculator

$470,000
 est. $2,078/mo

Newly renovated move in ready ranch home with over sized yard and 3 car garage. All Three bedrooms are on the main floor. Primary Bedroom has full bath with double vanity and shower. Hall bath has shower/tub combo and single vanity. A nice sized utility room/ pantry was added right off the kitchen to move the washer and dryer upstairs and provide ample storage. Lower level gives you the opportunity to double the size of the home! (could be a total of 3504 sq feet). The third car garage is in the back of the home in basement perfect for yard equipment or a project car. Convenient to 435, Shopping, Restaurants and Major Hospitals. Many schools nearby to choose from as well! Circle drive gives extra parking for all your guests. This home is ready for the holidays and awaits and ready to be moved in with no work needed

Directions
State Line to 103rd Terrace on East side of street. Use GPS for best directions. (home is right by Teslea)
Subdivision
Lea Manor
City
Kansas City
County
Jackson
Property Type
Residential / Single Family Residence
Listing Updated
Nov 23, 2025 at 3:11pm
MLS Number
2582992
Property Tax
$3,762
Home Owners Association
Yes - Lea Manor Homes Association
Disclaimer
The information displayed on this page is confidential, proprietary, and copyrighted information of Heartland Multiple Listing Service, Inc. (“Heartland MLS”). Copyright 2025, Heartland Multiple Listing Service, Inc. Heartland MLS, Elite Realty and Agent Jo do not make any warranty or representation concerning the timeliness or accuracy of the information displayed herein. In consideration for the receipt of the information on this page, the recipient agrees to use the information solely for the private non-commercial purpose of identifying a property in which the recipient has a good faith interest in acquiring.
The data relating to real estate displayed on this website comes in part from the Heartland Multiple Listing Service database compilation. The properties displayed on this website may not be all of the properties in the Heartland MLS database compilation, or all of the properties listed with other brokers participating in the Heartland MLS IDX program. Detailed information about the properties displayed on this website includes the name of the listing company.
Information is deemed reliable but is not guaranteed.

Copyright © 2025 ELITE Realty.