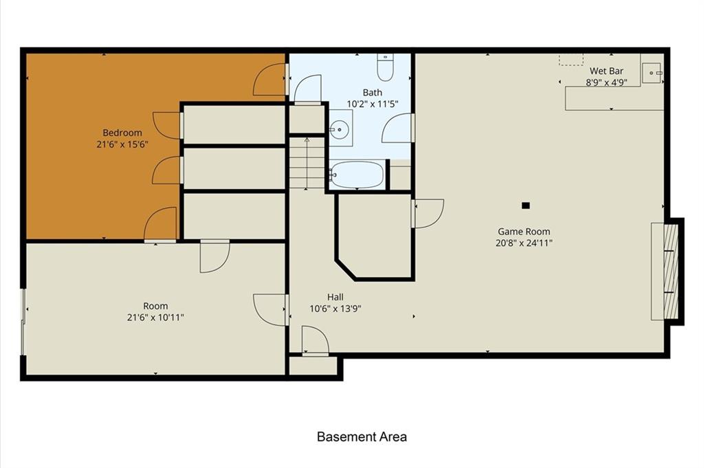
Ranch-style home on 12.33 acres +/- in Holt, MO, located in the Kearney School District, offering peaceful country living with room to grow. Enjoy main-level living with an eat-in kitchen, spacious living room, and three bedrooms on the main level, including the primary suite. The basement features a fireplace, family room, and two bedroom spaces with the option to combine them into one large conforming fourth bedroom, providing flexibility for future use. Outbuildings include a 60x40 machine shed, a 60x40 barn with stalls, and a 1+ acre horse paddock, ideal for running your animals or hobby farming. Major upgrades include remodeled bathroom, new roof, new driveway parking pad, and a high-efficiency heat pump system for very reasonable heating and cooling costs. A rare acreage opportunity with functional improvements and versatile space.
Copyright © 2025 ELITE Realty.