3001 Connor Avenue, Kansas City, KS 66106

     
  • 0Beds
  •   
  • 0 Baths
  •  
  • 5½ Baths
  •  
  • 10,064Sq Ft
Mortgage Calculator

$375,000
 est. $2,154/mo

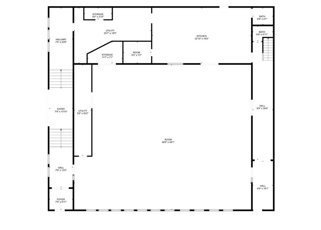
Historic charm with residential conversion potential in the Argentine District. This 10,640 SF building, constructed in 1922, is zoned R-1(B), allowing for single-family residential use (no multifamily). With city approval, this could be transformed into a truly unique single-family home, artist’s retreat, or live/work residence that preserves its rich architectural character. Inside, you’ll find a large open hall with tall ceilings, a commercial-grade kitchen, multiple rooms that could be reimagined into bedrooms or living areas, and original details throughout. The property sits on a quarter acre with off-street parking spaces —and a paved parking lot across the street (15 additional spaces) is also included in the sale. Located in a Qualified Census Tract, this property may be eligible for historic tax credits or other redevelopment incentives. A rare chance to own and reimagine a piece of Kansas City, KS history.

Directions
Take ramp onto I-70 W toward US-24 W/US-40 W/US-69 S. Go for 1.5 mi. Then 1.5 mi Take exit 420A toward 18th St Expwy onto US-69 S (S 18th St Expy). Go for 1.9 mi. Then 1.9 mi Take the exit toward Metropolitan Ave/Ruby Ave onto S 21st St. Go for 0.2 mi. Then 0.2 mi Turn left onto Metropolitan Ave. Go for 0.6 mi. Then 0.6 mi Turn right onto S 30th St. Go for 105 ft. Then 0.02 mi 3001 Conner Ave
Subdivision
Adams & Kings
City
Kansas City
County
Wyandotte
Property Type
Residential / Single Family Residence
Listing Updated
Nov 03, 2025 at 1:11pm
MLS Number
2553619
Property Tax
$8,949
Home Owners Association
No
Disclaimer
The information displayed on this page is confidential, proprietary, and copyrighted information of Heartland Multiple Listing Service, Inc. (“Heartland MLS”). Copyright 2025, Heartland Multiple Listing Service, Inc. Heartland MLS, Elite Realty and Agent Jo do not make any warranty or representation concerning the timeliness or accuracy of the information displayed herein. In consideration for the receipt of the information on this page, the recipient agrees to use the information solely for the private non-commercial purpose of identifying a property in which the recipient has a good faith interest in acquiring.
The data relating to real estate displayed on this website comes in part from the Heartland Multiple Listing Service database compilation. The properties displayed on this website may not be all of the properties in the Heartland MLS database compilation, or all of the properties listed with other brokers participating in the Heartland MLS IDX program. Detailed information about the properties displayed on this website includes the name of the listing company.
Information is deemed reliable but is not guaranteed.

Copyright © 2025 ELITE Realty.