14278 S Houston Street, Olathe, KS 66061

     
  • 3Beds
  •   
  • 2 Baths
  •  
  • 1½ Bath
  •  
  • 2,361Sq Ft
Mortgage Calculator

$587,950
 est. $2,775/mo

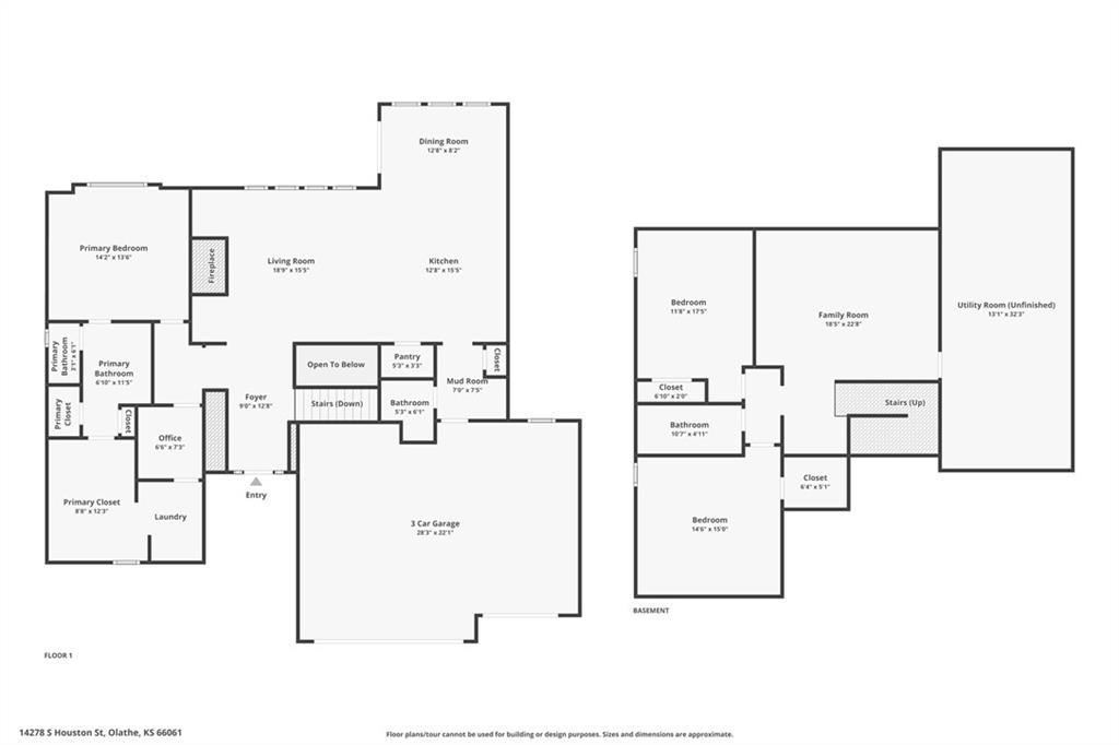
The Kendyl plan by New Mark Homes is a Reverse 1.5 story featuring 3 bdrms, 2 full and 1 half baths, 3 car garage. Home features an open & airy main level w/ Great Room, open dining & kitchen w/ gas cooktop. Spacious Master Suite w/ shower, large closet & office on main-level. Finished lower-level w/ large Rec Room, bar area, 2 secondary bdrms, full bath & tons of storage. HOME IS AT FINISH STAGE READY FOR A QUICK MOVE IN! Taxes are estimated. **Ask about our PARADE OF HOMES BUYER BONUS!** $10,000 to be used toward builder-paid upgrades, closing costs, prepaids, or interest rate buy-down with an accepted offer before May 10th. Lakeview Ridge is a new build community just west of Lake Olathe with great homes started and fantastic lots available. POOL coming in next phase. You can get to the neighborhood off of Dennis & Houston with easy access from K7 or coming from Lakeshore. Our Sales Office is located 14271 Houston. Our development is right next to Lake Olathe and neighborhood feeds into Clearwater Creek Elementary, Oregon Trail Middle School and Olathe West High School.

Directions
K7 to Dennis Ave/143rd St. West on Dennis Ave/143rd St to Houston St. North on Houston to 141st Terr. Left on 141st Terr to home.
Subdivision
Lakeview Ridge
City
Olathe
County
Johnson, KS
Property Type
Residential / Single Family Residence
Listing Updated
Apr 18, 2026 at 5:04pm
MLS Number
2552738
Property Tax
$6,804
Home Owners Association
Yes
Disclaimer
The information displayed on this page is confidential, proprietary, and copyrighted information of Heartland Multiple Listing Service, Inc. (“Heartland MLS”). Copyright 2026, Heartland Multiple Listing Service, Inc. Heartland MLS, Elite Realty and Agent Jo do not make any warranty or representation concerning the timeliness or accuracy of the information displayed herein. In consideration for the receipt of the information on this page, the recipient agrees to use the information solely for the private non-commercial purpose of identifying a property in which the recipient has a good faith interest in acquiring.
The data relating to real estate displayed on this website comes in part from the Heartland Multiple Listing Service database compilation. The properties displayed on this website may not be all of the properties in the Heartland MLS database compilation, or all of the properties listed with other brokers participating in the Heartland MLS IDX program. Detailed information about the properties displayed on this website includes the name of the listing company.
Information is deemed reliable but is not guaranteed.

Copyright © 2026 ELITE Realty.