720 Ottawa Street, Leavenworth, KS 66048

Mortgage Calculator

$1,950,000
 est. $8,746/mo

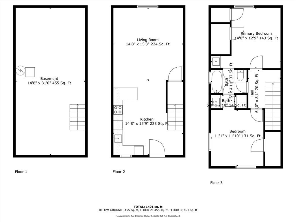
Coachlamp Apartments is an 18-unit multifamily community offering a compelling blend of immediate cash flow and long-term upside. Ideally located just minutes from Fort Leavenworth, the property benefits from a steady rental base and strong demand. Ten units have been fully renovated with modern finishes, while the remaining units present clear value-add potential for investors seeking to increase NOI. Coachlamp is positioned near local retail, dining, and major thoroughfares, offering both convenience and connectivity. With rising rental income, stable occupancy, and recent capital improvements, this asset is an ideal fit for investors targeting growth in a solid Midwestern market. Incredible investment opportunity! The rent range has been increased from $400-$750/month to $850-$1,150/month with more room to grow! Tenants pay their own electric and gas bills as well as a utility package for water, trash, and pest control. Tenants are on yearly leases and do not pay for lawn care or snow removal. A security camera system is installed and remains with the property. Professional property management is in place, and service can be retained at the time of sale. There is an in-ground pool with this property that needs some work.

Directions
92 HWY to 7 HWY South, turn right onto Ottawa St. Complex will be on the right hand side of the street.
Subdivision
Other
City
Leavenworth
County
Leavenworth
Property Type
Residential Income / Apartment
Listing Updated
Jun 17, 2025 at 1:06pm
MLS Number
2548228
Property Tax
$17,103
Zoning
$R16
Home Owners Association
No
Disclaimer
The information displayed on this page is confidential, proprietary, and copyrighted information of Heartland Multiple Listing Service, Inc. (“Heartland MLS”). Copyright 2026, Heartland Multiple Listing Service, Inc. Heartland MLS, Elite Realty and Agent Jo do not make any warranty or representation concerning the timeliness or accuracy of the information displayed herein. In consideration for the receipt of the information on this page, the recipient agrees to use the information solely for the private non-commercial purpose of identifying a property in which the recipient has a good faith interest in acquiring.
The data relating to real estate displayed on this website comes in part from the Heartland Multiple Listing Service database compilation. The properties displayed on this website may not be all of the properties in the Heartland MLS database compilation, or all of the properties listed with other brokers participating in the Heartland MLS IDX program. Detailed information about the properties displayed on this website includes the name of the listing company.
Information is deemed reliable but is not guaranteed.

Copyright © 2026 ELITE Realty.