25041 W 142nd Street, Olathe, KS 66061

     
  • 4Beds
  •   
  • 3 Baths
  •  
  • 0½ Baths
  •  
  • 2,566Sq Ft
Mortgage Calculator

$634,500
 est. $2,998/mo

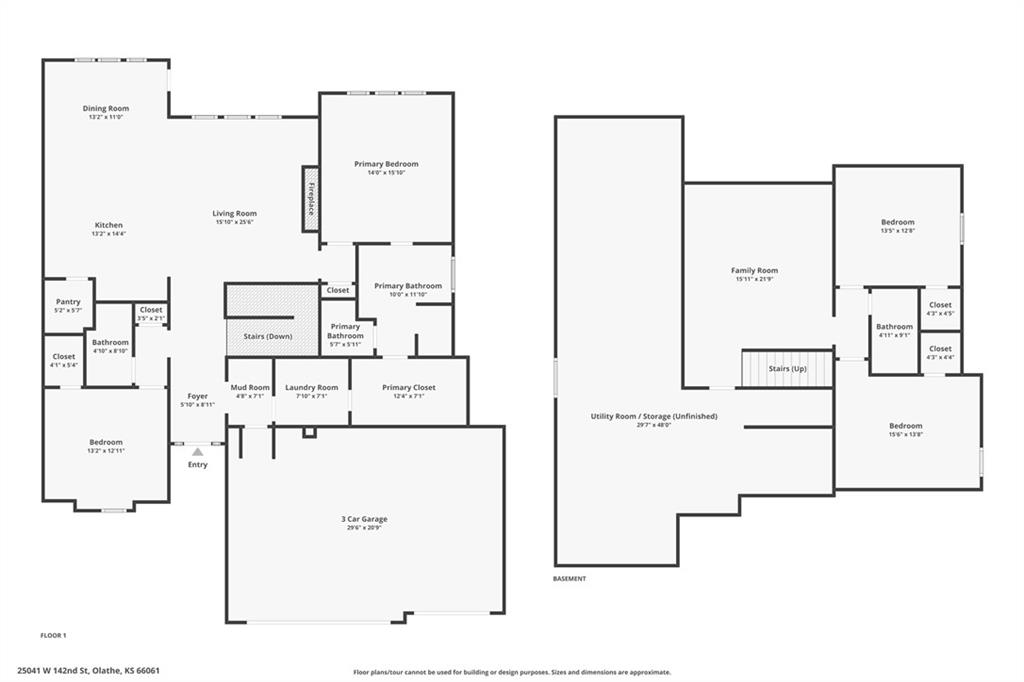
Welcome to the Sicilian I by Pauli Homes! This modern twist on the beloved Sicilian floor plan delivers all the style and livability you love — in a slightly smaller, smartly designed footprint. $10k BUYER BONUS with closing before year-end. The open main level is made for everyday living and entertaining, featuring a spacious great room that flows seamlessly into a designer kitchen with a large island — perfect for cooking, dining, or gathering with friends. The dining area is framed by multiple windows that fill the space with natural light. Retreat to the primary suite complete with a spa-inspired bath showcasing a freestanding tub, dual quartz vanities, and a walk-in shower. Convenient laundry access connects directly from the primary closet or from the main hallway. The finished lower level adds 810 sq. ft. of extra living space with a Rec Room, 2 bedrooms, full bath and TONS of storage. Located in Lakeview Ridge, a new home community just west of Lake Olathe — where residents will enjoy future amenities including a community pool (coming 2027), scenic surroundings, and easy access via K-7 or Lakeshore. Great Olathe Schools: Clearwater Creek Elementary, Oregon Trail Middle School, and Olathe West High School. Visit our Sales Office at 14271 Houston St. and explore the lifestyle waiting for you at Lakeview Ridge.

Directions
K7 to Dennis Ave/143rd St. West on Dennis Ave/143rd St to Houston St. North on Houston to 142nd St. Left on 142nd St to home.
Subdivision
Lakeview Ridge
City
Olathe
County
Johnson, KS
Property Type
Residential / Single Family Residence
Listing Updated
Dec 07, 2025 at 5:12pm
MLS Number
2547670
Property Tax
$7,392
Home Owners Association
Yes
Disclaimer
The information displayed on this page is confidential, proprietary, and copyrighted information of Heartland Multiple Listing Service, Inc. (“Heartland MLS”). Copyright 2025, Heartland Multiple Listing Service, Inc. Heartland MLS, Elite Realty and Agent Jo do not make any warranty or representation concerning the timeliness or accuracy of the information displayed herein. In consideration for the receipt of the information on this page, the recipient agrees to use the information solely for the private non-commercial purpose of identifying a property in which the recipient has a good faith interest in acquiring.
The data relating to real estate displayed on this website comes in part from the Heartland Multiple Listing Service database compilation. The properties displayed on this website may not be all of the properties in the Heartland MLS database compilation, or all of the properties listed with other brokers participating in the Heartland MLS IDX program. Detailed information about the properties displayed on this website includes the name of the listing company.
Information is deemed reliable but is not guaranteed.

Copyright © 2025 ELITE Realty.