8320 N Oak Trafficway, Kansas City, MO 64118

Mortgage Calculator

$1,250
 est. $6/mo

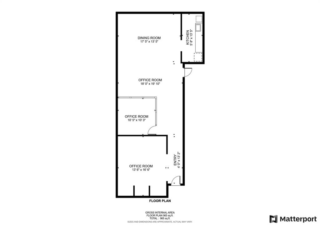
Ideal location for your business. Corner of Barry Road and N Oak Trafficway. This basement office space has 1 private glass office and one huge space ideal for cubicles. This space has a nice break room and storage area that could also be used as an office Space: 965 square feet Monthly Rent: $1,250 (includes Water, Electric & Gas. DOES NOT INCLUDE INTERNET OR PHONES) Security Deposit: $1,250 Application Fee: $50 Approval Requirements: No evictions in the past 5 years. No utilities in collections. Proof of monthly net income must be 3X rental amount. Good rental history with no money owed to past landlords. Good credit history. Once an applicant is approved there is a security deposit due upfront.

Directions
I-69 North to Barry road East to North Oak Traffic way to Building
City
Kansas City
County
Clay
Property Type
Commercial Lease / Office
Listing Updated
Jul 11, 2025 at 10:07am
MLS Number
2501122
Property Tax
$0
Zoning
$B4-2
Disclaimer
The information displayed on this page is confidential, proprietary, and copyrighted information of Heartland Multiple Listing Service, Inc. (“Heartland MLS”). Copyright 2026, Heartland Multiple Listing Service, Inc. Heartland MLS, Elite Realty and Agent Jo do not make any warranty or representation concerning the timeliness or accuracy of the information displayed herein. In consideration for the receipt of the information on this page, the recipient agrees to use the information solely for the private non-commercial purpose of identifying a property in which the recipient has a good faith interest in acquiring.
The data relating to real estate displayed on this website comes in part from the Heartland Multiple Listing Service database compilation. The properties displayed on this website may not be all of the properties in the Heartland MLS database compilation, or all of the properties listed with other brokers participating in the Heartland MLS IDX program. Detailed information about the properties displayed on this website includes the name of the listing company.
Information is deemed reliable but is not guaranteed.

Copyright © 2026 ELITE Realty.